Trieste Via San Martino

Descrizione

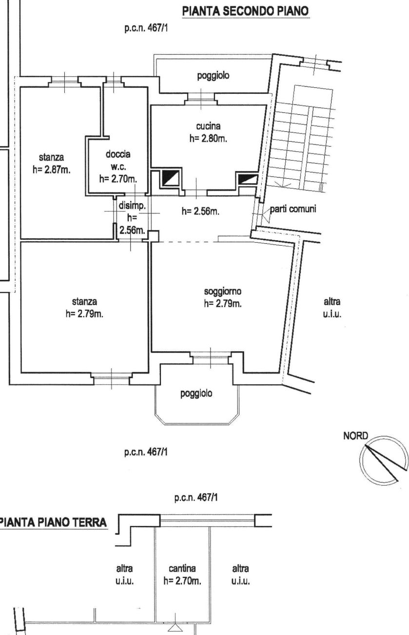
Situato nel quartiere di San Luigi, in una posizione defilata dalla confusione, proponiamo un appartamento al secondo piano di una palazzina degli anni '60. L’immobile è così composto: ingresso, soggiorno, cucina abitabile, due camere da letto, bagno e due poggioli. La proprietà include anche una cantina. Lo stato di manutenzione è molto buono, con l’ultima ristrutturazione effettuata circa 5 anni fa. Le finiture sono moderne: pavimenti in gres nella zona giorno e nelle camere da letto. I serramenti sono in alluminio con vetrocamera. L’impianto di riscaldamento è centralizzato, mentre il condizionamento è autonomo. L’appartamento gode di un’ottima luminosità interna. Attestato di prestazione energetica Classe F Disponibile fine gennaio 2026

Mappa

Scheda Immobile

Tipologia:
Appartamento
Prezzo
€ 187.000
Composizione:
Zona giorno + 2 stanze
Metratura:
90 m2
Riscaldamento:
Centralizzato
Piano:
2
Ascensore:
No
  stampa scheda

Planimetrie