Trieste - Altipiano Via Fiordalisi

Descrizione

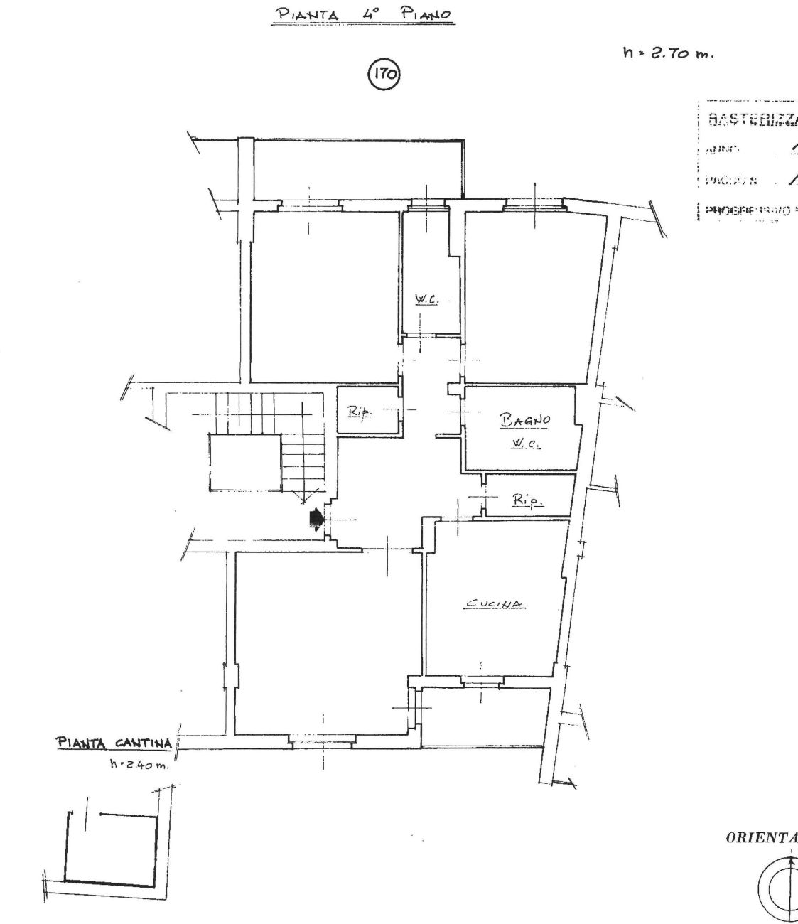
In località Opicina, in una zona tranquilla e defilata dal traffico, proponiamo un interessante appartamento all'ultimo piano servito da ascensore. L'interno è così composto: ingresso, soggiorno, cucina abitabile, due camere da letto, doppi servizi, ripostiglio e due comodi poggioli. La proprietà si completa di un posto auto e di una cantina in muratura. La situazione generale è buona, con serramenti in alluminio e pavimenti in ceramica nella zona giorno e nella cucina, mentre nelle camere da letto è presente il parquet. Grazie alla doppia esposizione, gli ambienti risultano ariosi e ben illuminati. L'attestazione energetica è in fase di stesura.

Scheda Immobile

Tipologia:
Appartamento
Prezzo
€ 260.000
Composizione:
Zona giorno + 2 stanze
Metratura:
100 m2
Riscaldamento:
Autonomo
Piano:
quarto
Ascensore:
  stampa scheda

Planimetrie